DOM SZKIELETOWY Z PODDASZEM – ARCHETYP ERNA DREWNIANA
Dom drewniany w technologii szkieletowej dostępny w wersji rekreacyjnej całorocznej oraz mieszkalnej przeznaczony dla 4-6 osobowej rodziny.
DOM SZKIELETOWY Z PODDASZEM – ARCHETYP ERNA DREWNIANA
Odkryj dom Erna – innowacyjny dom dla 4-6 osób zaprojektowany przez architektów pracowni Archeyp, łączący funkcjonalność i nowoczesność. Z przestronnym salonem, aneksem kuchennym, sypialniami i gabinetem, ten dom szkieletowy oferuje komfort i stylowe wykończenie. Idealny dla nowoczesnej rodziny.
Charakterystyka budynku
Podstawowe informacje
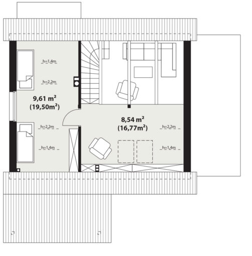
POWIERZCHNIA ZABUDOWY
63,19 m²
POWIERZCHNIA UŻYTKOWA
69,19 m²
POWIERZCHNIA DACHU
119 m²
KUBATURA
336,5 m³
WYSOKOŚĆ W KALENICY
6,72 m
WYSOKOŚĆ PARTERU
2,55 m
WYSOKOŚĆ PIĘTRA
2,60 m
WYSOKOŚĆ ŚCIANKI KOL.
0,53 m
MINIMALNE WYMIARY DZIAŁKI
16,9 m x 16,1 m
KĄT NACHYLENIA DACHU
38°
POKOJE (BEZ SALONU)
2
ŁAZIENKI I TOALETY
1
GARAŻ
Brak garażu
Rzuty i przekroje
Opis wykończenia
Dom drewniany szkieletowy wykonany w konstrukcji szkieletu drewnianego w całości ocieplony wełną mineralną grubości 15 cm (λ 0,033) wykończony drewnem lub płytą Fermacell (do spoinowania). Jest to wersja domu drewnianego, który pozwala na użytkowanie całym rokiem. Wydzielone pomieszczenia za pomocą szkieletu 7 cm wypełnionego wełną mineralną 5 cm. Dom wyposażony w stolarkę okienną trzyszybową PCV oraz w stolarkę drzwiową (drzwi wejściowe antywłamaniowe, drzwi wewnętrzne drewniane). Na stropie deska podłogowa świerkowa z możliwością wygłuszenia. Dach pokryty blachodachówką wraz z obróbkami blacharskimi i orynnowaniem. Możliwość postawienia komina systemowego z obróbką nad dachem.
Stan surowy otwarty: 93 783 zł
Stan wykończony: 331 090 zł
Dom drewniany szkieletowy wykonany w konstrukcji szkieletu drewnianego w całości ocieplony wełną mineralną (ściany 20 cm, dach 30 cm – λ 0,033) wykończony drewnem lub płytą Fermacell (do spoinowania). Wydzielone pomieszczenia za pomocą szkieletu 7 cm wypełnionego wełną mineralną 5 cm. Dom wyposażony w stolarkę okienną trzyszybową PCV oraz w stolarkę drzwiową (drzwi wejściowe antywłamaniowe, drzwi wewnętrzne drewniane). Na stropie deska podłogowa świerkowa z możliwością wykonania stropu mieszkalnego (20 cm). Dach pokryty blachodachówką wraz z obróbkami blacharskimi i orynnowaniem. Możliwość postawienia komina systemowego z obróbką nad dachem. Ta wersja domu szkieletowego spełnia warunki domu mieszkalnego i norm przenikalności ciepła.
Stan surowy otwarty: 93 783 zł
Stan wykończony: 364 511 zł
m2 pow. użytkowej stanu wykończonego 5 268 zł netto
- Rekreacyjny
-
Dom drewniany szkieletowy wykonany w konstrukcji szkieletu drewnianego w całości ocieplony wełną mineralną grubości 15 cm (λ 0,033) wykończony drewnem lub płytą Fermacell (do spoinowania). Jest to wersja domu drewnianego, który pozwala na użytkowanie całym rokiem. Wydzielone pomieszczenia za pomocą szkieletu 7 cm wypełnionego wełną mineralną 5 cm. Dom wyposażony w stolarkę okienną trzyszybową PCV oraz w stolarkę drzwiową (drzwi wejściowe antywłamaniowe, drzwi wewnętrzne drewniane). Na stropie deska podłogowa świerkowa z możliwością wygłuszenia. Dach pokryty blachodachówką wraz z obróbkami blacharskimi i orynnowaniem. Możliwość postawienia komina systemowego z obróbką nad dachem.
Stan surowy otwarty: 93 783 zł
Stan wykończony: 331 090 zł
- Mieszkalny
-
Dom drewniany szkieletowy wykonany w konstrukcji szkieletu drewnianego w całości ocieplony wełną mineralną (ściany 20 cm, dach 30 cm – λ 0,033) wykończony drewnem lub płytą Fermacell (do spoinowania). Wydzielone pomieszczenia za pomocą szkieletu 7 cm wypełnionego wełną mineralną 5 cm. Dom wyposażony w stolarkę okienną trzyszybową PCV oraz w stolarkę drzwiową (drzwi wejściowe antywłamaniowe, drzwi wewnętrzne drewniane). Na stropie deska podłogowa świerkowa z możliwością wykonania stropu mieszkalnego (20 cm). Dach pokryty blachodachówką wraz z obróbkami blacharskimi i orynnowaniem. Możliwość postawienia komina systemowego z obróbką nad dachem. Ta wersja domu szkieletowego spełnia warunki domu mieszkalnego i norm przenikalności ciepła.
Stan surowy otwarty: 93 783 zł
Stan wykończony: 364 511 zł
m2 pow. użytkowej stanu wykończonego 5 268 zł netto
Preferencyjna stawka VAT 8% dotyczy budynków mieszkalnych na działce budowlanej.
Poszczególne stany wykończenia nie zawierają ceny fundamentów, instalacji elektrycznej i wod.-kan. oraz transportu.
Sprawdź materiały, z których budujemy
Nasze multimedia
8 kroków do wymarzonego domu drewnianego
Nasze wartości
Nasze artykuły i porady
Opinie naszych klientów
Inne projekty
Polecani producenci





