DOM DREWNIANY 36 M² Z PODDASZEM CAS 60 „JANTAR”
Dom drewniany w technologii balika płaskiego lub szkieletowej dostępny w wersji letniskowej oraz rekreacyjnej całorocznej przeznaczony dla 2-4 osobowej rodziny.
DOM DREWNIANY 36 M² Z PODDASZEM CAS 60 „JANTAR”
Dom drewniany Jantar 60, w technologii balika płaskiego lub szkieletowej, idealny dla 2-4 osobowej rodziny. Dostępny w wersji letniskowej i rekreacyjnej całorocznej. Przestronny salon z aneksem kuchennym, łazienką, 2 niezależnymi sypialniami i dużym tarasem bocznym. Ten dom drewniany posiada wiele wariantów wykończenia.
Charakterystyka budynku
Podstawowe informacje
POWIERZCHNIA ZABUDOWY
48,45 m²
POWIERZCHNIA UŻYTKOWA
36,22 m²
POWIERZCHNIA UŻYTKOWA PARTERU
24,25 m²
POWIERZCHNIA UŻYTKOWA PODDASZA
11,97 m²
KUBATURA
185m³
WYSOKOŚĆ KALENICY
6,80m
MINIMALNE WYMIARY DZIAŁKI
15,99×14,09m
KĄT NACHYLENIA DACHU
45°
WYSOKOŚĆ POMIESZCZEŃ: PARTER
270cm
WYSOKOŚĆ POMIESZCZEŃ: PODDASZE
250cm
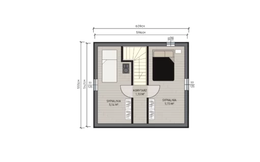
Rzuty i przekroje
Opis wykończenia
Dom drewniany szkieletowy wykonany w konstrukcji szkieletu drewnianego w całości ocieplony wełną mineralną grubości 15 cm (λ 0,033) wykończony drewnem lub płytą Fermacell (do spoinowania). Jest to wersja domu drewnianego, który pozwala na użytkowanie całym rokiem. Wydzielone pomieszczenia za pomocą szkieletu 7 cm wypełnionego wełną mineralną 5 cm. Dom wyposażony w stolarkę okienną trzyszybową PCV oraz w stolarkę drzwiową (drzwi wejściowe antywłamaniowe, drzwi wewnętrzne drewniane). Na stropie deska podłogowa świerkowa z możliwością wygłuszenia. Dach pokryty blachodachówką wraz z obróbkami blacharskimi i orynnowaniem. Możliwość postawienia komina systemowego z obróbką nad dachem.
Stan surowy otwarty 52 978 zł netto
Stan wykończony 221 124 zł netto
Dom drewniany wykonany z balika płaskiego grubości 45 mm łączonego na podwójne pióro i wpust z ocieploną podłogą i dachem. Podłogi pokryte deską podłogową, schody zabiegowe z barierką. Wydzielone pomieszczenia za pomocą balika gr. 45mmm. Dom wyposażony w stolarkę okienną dwuszybową rekreacyjną oraz w stolarkę drzwiową. Dach pokryty blachodachówką wraz z obróbkami blacharskimi i orynnowaniem. W tej wersji brak możliwości ocieplenia ścian.
Stan surowy otwarty 66 190 zł netto
Stan wykończony 198 335 zł netto
- Rekreacyjny
-
Dom drewniany szkieletowy wykonany w konstrukcji szkieletu drewnianego w całości ocieplony wełną mineralną grubości 15 cm (λ 0,033) wykończony drewnem lub płytą Fermacell (do spoinowania). Jest to wersja domu drewnianego, który pozwala na użytkowanie całym rokiem. Wydzielone pomieszczenia za pomocą szkieletu 7 cm wypełnionego wełną mineralną 5 cm. Dom wyposażony w stolarkę okienną trzyszybową PCV oraz w stolarkę drzwiową (drzwi wejściowe antywłamaniowe, drzwi wewnętrzne drewniane). Na stropie deska podłogowa świerkowa z możliwością wygłuszenia. Dach pokryty blachodachówką wraz z obróbkami blacharskimi i orynnowaniem. Możliwość postawienia komina systemowego z obróbką nad dachem.
Stan surowy otwarty 52 978 zł netto
Stan wykończony 221 124 zł netto
- Letniskowa
-
Dom drewniany wykonany z balika płaskiego grubości 45 mm łączonego na podwójne pióro i wpust z ocieploną podłogą i dachem. Podłogi pokryte deską podłogową, schody zabiegowe z barierką. Wydzielone pomieszczenia za pomocą balika gr. 45mmm. Dom wyposażony w stolarkę okienną dwuszybową rekreacyjną oraz w stolarkę drzwiową. Dach pokryty blachodachówką wraz z obróbkami blacharskimi i orynnowaniem. W tej wersji brak możliwości ocieplenia ścian.
Stan surowy otwarty 66 190 zł netto
Stan wykończony 198 335 zł netto
Preferencyjna stawka VAT 8% dotyczy budynków mieszkalnych na działce budowlanej.
Poszczególne stany wykończenia nie zawierają ceny fundamentów, instalacji elektrycznej i wod.-kan. oraz transportu.
Sprawdź materiały, z których budujemy
Nasze multimedia
8 kroków do wymarzonego domu drewnianego
Nasze wartości
Nasze artykuły i porady
Opinie naszych klientów
Inne projekty
Polecani producenci





