NOWOCZESNY DOM SZKIELETOWY 33 M² Z TARASEM CAS-60 „MODERN”
Nowoczesny dom drewniany w technologii szkieletowej dostępny w wersji rekreacyjnej całorocznej oraz mieszkalnej przeznaczony dla 4 osobowej rodziny.
NOWOCZESNY DOM SZKIELETOWY 33 M² Z TARASEM CAS-60 „MODERN”
Dom Modern 60 to nowoczesny dom drewniany wykonany w technologii szkieletowej, dostępny w wersji rekreacyjnej całorocznej oraz mieszkalnej, z poddaszem i bez podpiwniczenia. Charakteryzuje się minimalistyczną, ale wyrazistą bryłą, dużymi oknami i przeszklonymi drzwiami, przestronnym i jasnym wnętrzem oraz wysoką izolacją termiczną.
Charakterystyka budynku
Podstawowe informacje
POWIERZCHNIA ZABUDOWY
40,03 m²
POWIERZCHNIA UŻYTKOWA
33,83 m²
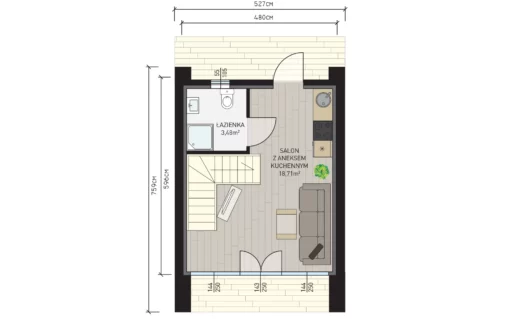
POWIERZCHNIA UŻYTKOWA PARTERU
22,19 m²
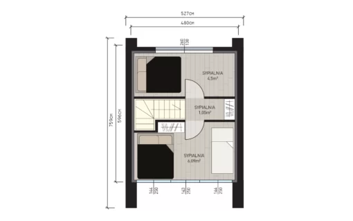
POWIERZCHNIA UŻYTKOWA PODDASZA
11,64 m²
KUBATURA
185m³
WYSOKOŚĆ KALENICY
6,74m
MINIMALNE WYMIARY DZIAŁKI
13,27×15,60m
KĄT NACHYLENIA DACHU
45°
WYSOKOŚĆ POMIESZCZEŃ: PARTER
270cm
WYSOKOŚĆ POMIESZCZEŃ: PODDASZE
250cm
Rzuty i przekroje
Opis wykończenia
Dom drewniany szkieletowy wykonany w konstrukcji szkieletu drewnianego w całości ocieplony wełną mineralną grubości 15 cm (λ 0,033) wykończony drewnem lub płytą Fermacell (do spoinowania). Jest to wersja domu drewnianego, który pozwala na użytkowanie całym rokiem. Wydzielone pomieszczenia za pomocą szkieletu 7 cm wypełnionego wełną mineralną 5 cm. Dom wyposażony w stolarkę okienną trzyszybową PCV oraz w stolarkę drzwiową (drzwi wejściowe antywłamaniowe, drzwi wewnętrzne drewniane). Na stropie deska podłogowa świerkowa z możliwością wygłuszenia. Dach pokryty blachodachówką wraz z obróbkami blacharskimi i orynnowaniem. Możliwość postawienia komina systemowego z obróbką nad dachem.
Stan surowy otwarty 68 797 zł netto
Stan wykończony 248 243 zł netto
Dom drewniany szkieletowy wykonany w konstrukcji szkieletu drewnianego w całości ocieplony wełną mineralną (ściany 20 cm, dach 30 cm – λ 0,033) wykończony drewnem lub płytą Fermacell (do spoinowania). Wydzielone pomieszczenia za pomocą szkieletu 7 cm wypełnionego wełną mineralną 5 cm. Dom wyposażony w stolarkę okienną trzyszybową PCV oraz w stolarkę drzwiową (drzwi wejściowe antywłamaniowe, drzwi wewnętrzne drewniane). Na stropie deska podłogowa świerkowa z możliwością wykonania stropu mieszkalnego (20 cm). Dach pokryty blachodachówką wraz z obróbkami blacharskimi i orynnowaniem. Możliwość postawienia komina systemowego z obróbką nad dachem. Ta wersja domu szkieletowego spełnia warunki domu mieszkalnego i norm przenikalności ciepła.
Stan surowy otwarty 68 797 zł netto
Stan wykończony 268 147 zł netto
m2 pow. użytkowej stanu wykończonego 7 926 zł netto
- Rekreacyjny
-
Dom drewniany szkieletowy wykonany w konstrukcji szkieletu drewnianego w całości ocieplony wełną mineralną grubości 15 cm (λ 0,033) wykończony drewnem lub płytą Fermacell (do spoinowania). Jest to wersja domu drewnianego, który pozwala na użytkowanie całym rokiem. Wydzielone pomieszczenia za pomocą szkieletu 7 cm wypełnionego wełną mineralną 5 cm. Dom wyposażony w stolarkę okienną trzyszybową PCV oraz w stolarkę drzwiową (drzwi wejściowe antywłamaniowe, drzwi wewnętrzne drewniane). Na stropie deska podłogowa świerkowa z możliwością wygłuszenia. Dach pokryty blachodachówką wraz z obróbkami blacharskimi i orynnowaniem. Możliwość postawienia komina systemowego z obróbką nad dachem.
Stan surowy otwarty 68 797 zł netto
Stan wykończony 248 243 zł netto
- Mieszkalny
-
Dom drewniany szkieletowy wykonany w konstrukcji szkieletu drewnianego w całości ocieplony wełną mineralną (ściany 20 cm, dach 30 cm – λ 0,033) wykończony drewnem lub płytą Fermacell (do spoinowania). Wydzielone pomieszczenia za pomocą szkieletu 7 cm wypełnionego wełną mineralną 5 cm. Dom wyposażony w stolarkę okienną trzyszybową PCV oraz w stolarkę drzwiową (drzwi wejściowe antywłamaniowe, drzwi wewnętrzne drewniane). Na stropie deska podłogowa świerkowa z możliwością wykonania stropu mieszkalnego (20 cm). Dach pokryty blachodachówką wraz z obróbkami blacharskimi i orynnowaniem. Możliwość postawienia komina systemowego z obróbką nad dachem. Ta wersja domu szkieletowego spełnia warunki domu mieszkalnego i norm przenikalności ciepła.
Stan surowy otwarty 68 797 zł netto
Stan wykończony 268 147 zł netto
m2 pow. użytkowej stanu wykończonego 7 926 zł netto
Preferencyjna stawka VAT 8% dotyczy budynków mieszkalnych na działce budowlanej.
Poszczególne stany wykończenia nie zawierają ceny fundamentów, instalacji elektrycznej i wod.-kan. oraz transportu.
Sprawdź materiały, z których budujemy
Nasze multimedia
8 kroków do wymarzonego domu drewnianego
Nasze wartości
Nasze artykuły i porady
Opinie naszych klientów
Inne projekty
Polecani producenci





