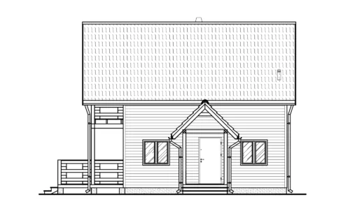
DOM Z DREWNA 58 M² Z DWOMA WEJŚCIAMI I TARASEM 18M² CAS 84 „KOŁOBRZEG”
Dom z drewna w balika płaskiego lub szkieletowej dostępny w wersji letniskowej, rekreacyjnej całorocznej oraz mieszkalnej, przeznaczony dla 4 osobowej rodziny. nowoczesnej bryle, z balkonem oraz tarasem od strony szczytu.
DOM Z DREWNA 58 M² Z DWOMA WEJŚCIAMI I TARASEM 18M² CAS 84 „KOŁOBRZEG”
Dom drewniany Kołobrzeg 84 to kompaktowy, nowoczesny dom dla 4-osobowej rodziny, dostępny w wersjach letniskowej, rekreacyjnej całorocznej i mieszkalnej. Wykonany w technologii balika płaskiego lub szkieletowej, oferuje przestronny salon z aneksem kuchennym, łazienkę oraz dwie sypialnie. Idealny dla osób ceniących komfort i funkcjonalność. Drewniany dom, który spełni wszelkie potrzeby rodziny.
Charakterystyka budynku
Podstawowe informacje
POWIERZCHNIA ZABUDOWY
57,00 m²
POWIERZCHNIA UŻYTKOWA
57,86 m²
POWIERZCHNIA UŻYTKOWA PARTERU
34,86 m²
POWIERZCHNIA UŻYTKOWA PODDASZA
23,00 m²
KUBATURA
266m³
WYSOKOŚĆ KALENICY
7,74m
MINIMALNE WYMIARY DZIAŁKI
17,28×13,62m
KĄT NACHYLENIA DACHU
45°
WYSOKOŚĆ POMIESZCZEŃ: PARTER
270cm
WYSOKOŚĆ POMIESZCZEŃ: PODDASZE
264cm
Rzuty i przekroje
Opis wykończenia
Dom drewniany szkieletowy wykonany w konstrukcji szkieletu drewnianego w całości ocieplony wełną mineralną grubości 15 cm (λ 0,033) wykończony drewnem lub płytą Fermacell (do spoinowania). Jest to wersja domu drewnianego, który pozwala na użytkowanie całym rokiem. Wydzielone pomieszczenia za pomocą szkieletu 7 cm wypełnionego wełną mineralną 5 cm. Dom wyposażony w stolarkę okienną trzyszybową PCV oraz w stolarkę drzwiową (drzwi wejściowe antywłamaniowe, drzwi wewnętrzne drewniane). Na stropie deska podłogowa świerkowa z możliwością wygłuszenia. Dach pokryty blachodachówką wraz z obróbkami blacharskimi i orynnowaniem. Możliwość postawienia komina systemowego z obróbką nad dachem.
Stan surowy otwarty 78 044 zł netto
Stan wykończony 299 894 zł netto
Dom drewniany szkieletowy wykonany w konstrukcji szkieletu drewnianego w całości ocieplony wełną mineralną (ściany 20 cm, dach 30 cm – λ 0,033) wykończony drewnem lub płytą Fermacell (do spoinowania). Wydzielone pomieszczenia za pomocą szkieletu 7 cm wypełnionego wełną mineralną 5 cm. Dom wyposażony w stolarkę okienną trzyszybową PCV oraz w stolarkę drzwiową (drzwi wejściowe antywłamaniowe, drzwi wewnętrzne drewniane). Na stropie deska podłogowa świerkowa z możliwością wykonania stropu mieszkalnego (20 cm). Dach pokryty blachodachówką wraz z obróbkami blacharskimi i orynnowaniem. Możliwość postawienia komina systemowego z obróbką nad dachem. Ta wersja domu szkieletowego spełnia warunki domu mieszkalnego i norm przenikalności ciepła.
Stan surowy otwarty 78 044 zł netto
Stan wykończony 328 027 zł netto
m2 pow. użytkowej stanu wykończonego 5 669 zł netto
Dom drewniany wykonany z balika płaskiego grubości 45 mm łączonego na podwójne pióro i wpust z ocieploną podłogą i dachem. Podłogi pokryte deską podłogową, schody zabiegowe z barierką. Wydzielone pomieszczenia za pomocą balika gr. 45mmm. Dom wyposażony w stolarkę okienną dwuszybową rekreacyjną oraz w stolarkę drzwiową. Dach pokryty blachodachówką wraz z obróbkami blacharskimi i orynnowaniem. W tej wersji brak możliwości ocieplenia ścian.
Stan surowy otwarty 90 102 zł netto
Stan wykończony 246 058 zł netto
- Rekreacyjny
-
Dom drewniany szkieletowy wykonany w konstrukcji szkieletu drewnianego w całości ocieplony wełną mineralną grubości 15 cm (λ 0,033) wykończony drewnem lub płytą Fermacell (do spoinowania). Jest to wersja domu drewnianego, który pozwala na użytkowanie całym rokiem. Wydzielone pomieszczenia za pomocą szkieletu 7 cm wypełnionego wełną mineralną 5 cm. Dom wyposażony w stolarkę okienną trzyszybową PCV oraz w stolarkę drzwiową (drzwi wejściowe antywłamaniowe, drzwi wewnętrzne drewniane). Na stropie deska podłogowa świerkowa z możliwością wygłuszenia. Dach pokryty blachodachówką wraz z obróbkami blacharskimi i orynnowaniem. Możliwość postawienia komina systemowego z obróbką nad dachem.
Stan surowy otwarty 78 044 zł netto
Stan wykończony 299 894 zł netto
- Mieszkalny
-
Dom drewniany szkieletowy wykonany w konstrukcji szkieletu drewnianego w całości ocieplony wełną mineralną (ściany 20 cm, dach 30 cm – λ 0,033) wykończony drewnem lub płytą Fermacell (do spoinowania). Wydzielone pomieszczenia za pomocą szkieletu 7 cm wypełnionego wełną mineralną 5 cm. Dom wyposażony w stolarkę okienną trzyszybową PCV oraz w stolarkę drzwiową (drzwi wejściowe antywłamaniowe, drzwi wewnętrzne drewniane). Na stropie deska podłogowa świerkowa z możliwością wykonania stropu mieszkalnego (20 cm). Dach pokryty blachodachówką wraz z obróbkami blacharskimi i orynnowaniem. Możliwość postawienia komina systemowego z obróbką nad dachem. Ta wersja domu szkieletowego spełnia warunki domu mieszkalnego i norm przenikalności ciepła.
Stan surowy otwarty 78 044 zł netto
Stan wykończony 328 027 zł netto
m2 pow. użytkowej stanu wykończonego 5 669 zł netto
- Letniskowy
-
Dom drewniany wykonany z balika płaskiego grubości 45 mm łączonego na podwójne pióro i wpust z ocieploną podłogą i dachem. Podłogi pokryte deską podłogową, schody zabiegowe z barierką. Wydzielone pomieszczenia za pomocą balika gr. 45mmm. Dom wyposażony w stolarkę okienną dwuszybową rekreacyjną oraz w stolarkę drzwiową. Dach pokryty blachodachówką wraz z obróbkami blacharskimi i orynnowaniem. W tej wersji brak możliwości ocieplenia ścian.
Stan surowy otwarty 90 102 zł netto
Stan wykończony 246 058 zł netto
Preferencyjna stawka VAT 8% dotyczy budynków mieszkalnych na działce budowlanej.
Poszczególne stany wykończenia nie zawierają ceny fundamentów, instalacji elektrycznej i wod.-kan. oraz transportu.
Sprawdź materiały, z których budujemy
Nasze multimedia
8 kroków do wymarzonego domu drewnianego
Nasze wartości
Nasze artykuły i porady
Opinie naszych klientów
Inne projekty
Polecani producenci





