DOM SZKIELETOWY Z PODDASZEM – ARCHETYP ERNA 3 DREWNIANA
Dom drewniany w technologii szkieletowej dostępny w wersji rekreacyjnej całorocznej oraz mieszkalnej przeznaczony dla 2-4 osobowej rodziny.
DOM SZKIELETOWY Z PODDASZEM – ARCHETYP ERNA 3 DREWNIANA
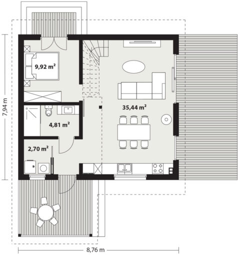
Erna 3 to stylowy dom parterowy z antresolą pracowni Archetyp dla 2-4 osób. Oferuje salon z aneksem, sypialnię, toaletę na parterze i dodatkową sypialnię na antresoli, na powierzchni 68,33 m². Wysoka jakość budowy, dostosowanie do potrzeb klienta.
Charakterystyka budynku
Podstawowe informacje
POWIERZCHNIA ZABUDOWY
69,55 m²
POWIERZCHNIA UŻYTKOWA
68,33 m²
POWIERZCHNIA DACHU
108,9 m²
KUBATURA
392,7 m³
WYSOKOŚĆ W KALENICY
7,05 m
WYSOKOŚĆ PARTERU
2,51 m
WYSOKOŚĆ PIĘTRA
2,90 m
WYSOKOŚĆ ŚCIANKI KOL.
0,63 m
MINIMALNE WYMIARY DZIAŁKI
15,76 m x 16,94 m
KĄT NACHYLENIA DACHU
35°
POKOJE (BEZ SALONU)
1
ŁAZIENKI I TOALETY
1
GARAŻ
Brak garażu
Rzuty i przekroje
Opis wykończenia
Dom drewniany szkieletowy wykonany w konstrukcji szkieletu drewnianego w całości ocieplony wełną mineralną grubości 15 cm (λ 0,033) wykończony drewnem lub płytą Fermacell (do spoinowania). Jest to wersja domu drewnianego, który pozwala na użytkowanie całym rokiem. Wydzielone pomieszczenia za pomocą szkieletu 7 cm wypełnionego wełną mineralną 5 cm. Dom wyposażony w stolarkę okienną trzyszybową PCV oraz w stolarkę drzwiową (drzwi wejściowe antywłamaniowe, drzwi wewnętrzne drewniane). Na stropie deska podłogowa świerkowa z możliwością wygłuszenia. Dach pokryty blachodachówką wraz z obróbkami blacharskimi i orynnowaniem. Możliwość postawienia komina systemowego z obróbką nad dachem.
Stan surowy otwarty: 98 468 zł
Stan wykończony: 332 902 zł
Dom drewniany szkieletowy wykonany w konstrukcji szkieletu drewnianego w całości ocieplony wełną mineralną (ściany 20 cm, dach 30 cm – λ 0,033) wykończony drewnem lub płytą Fermacell (do spoinowania). Wydzielone pomieszczenia za pomocą szkieletu 7 cm wypełnionego wełną mineralną 5 cm. Dom wyposażony w stolarkę okienną trzyszybową PCV oraz w stolarkę drzwiową (drzwi wejściowe antywłamaniowe, drzwi wewnętrzne drewniane). Na stropie deska podłogowa świerkowa z możliwością wykonania stropu mieszkalnego (20 cm). Dach pokryty blachodachówką wraz z obróbkami blacharskimi i orynnowaniem. Możliwość postawienia komina systemowego z obróbką nad dachem. Ta wersja domu szkieletowego spełnia warunki domu mieszkalnego i norm przenikalności ciepła.
Stan surowy otwarty: 98 468 zł
Stan wykończony: 366 511 zł
m2 pow. użytkowej stanu wykończonego 5 367 zł netto
- Rekreacyjny
-
Dom drewniany szkieletowy wykonany w konstrukcji szkieletu drewnianego w całości ocieplony wełną mineralną grubości 15 cm (λ 0,033) wykończony drewnem lub płytą Fermacell (do spoinowania). Jest to wersja domu drewnianego, który pozwala na użytkowanie całym rokiem. Wydzielone pomieszczenia za pomocą szkieletu 7 cm wypełnionego wełną mineralną 5 cm. Dom wyposażony w stolarkę okienną trzyszybową PCV oraz w stolarkę drzwiową (drzwi wejściowe antywłamaniowe, drzwi wewnętrzne drewniane). Na stropie deska podłogowa świerkowa z możliwością wygłuszenia. Dach pokryty blachodachówką wraz z obróbkami blacharskimi i orynnowaniem. Możliwość postawienia komina systemowego z obróbką nad dachem.
Stan surowy otwarty: 98 468 zł
Stan wykończony: 332 902 zł
- Mieszkalny
-
Dom drewniany szkieletowy wykonany w konstrukcji szkieletu drewnianego w całości ocieplony wełną mineralną (ściany 20 cm, dach 30 cm – λ 0,033) wykończony drewnem lub płytą Fermacell (do spoinowania). Wydzielone pomieszczenia za pomocą szkieletu 7 cm wypełnionego wełną mineralną 5 cm. Dom wyposażony w stolarkę okienną trzyszybową PCV oraz w stolarkę drzwiową (drzwi wejściowe antywłamaniowe, drzwi wewnętrzne drewniane). Na stropie deska podłogowa świerkowa z możliwością wykonania stropu mieszkalnego (20 cm). Dach pokryty blachodachówką wraz z obróbkami blacharskimi i orynnowaniem. Możliwość postawienia komina systemowego z obróbką nad dachem. Ta wersja domu szkieletowego spełnia warunki domu mieszkalnego i norm przenikalności ciepła.
Stan surowy otwarty: 98 468 zł
Stan wykończony: 366 511 zł
m2 pow. użytkowej stanu wykończonego 5 367 zł netto
Preferencyjna stawka VAT 8% dotyczy budynków mieszkalnych na działce budowlanej.
Poszczególne stany wykończenia nie zawierają ceny fundamentów, instalacji elektrycznej i wod.-kan. oraz transportu.
Sprawdź materiały, z których budujemy
Nasze multimedia
8 kroków do wymarzonego domu drewnianego
Nasze wartości
Nasze artykuły i porady
Opinie naszych klientów
Inne projekty
Polecani producenci





