DOM DREWNIANY 29 M² Z PODDASZEM CAS 50 „JANTAR”
Dom drewniany w technologii balika płaskiego dostępny w wersji letniskowej całorocznej, przeznaczony dla 2-4 osobowej rodziny.
DOM DREWNIANY 29 M² Z PODDASZEM CAS 50 „JANTAR”
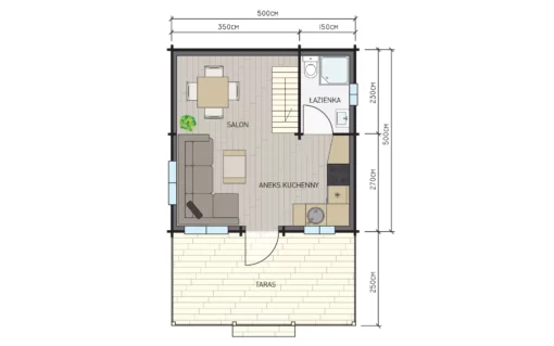
Dom letniskowy Jantar 50 to idealne miejsce dla 2-4 osobowej rodziny. Tradycyjna bryła domu daje możliwość personalizacji wykończenia. Przestronny salon z aneksem kuchennym, funkcjonalna łazienka oraz dwie niezależne sypialnie na poddaszu zapewniają komfort. Duży boczny taras to idealne miejsce na relaks.
Charakterystyka budynku
Podstawowe informacje
POWIERZCHNIA ZABUDOWY
37,50 m²
POWIERZCHNIA UŻYTKOWA
28,64 m²
POWIERZCHNIA UŻYTKOWA PARTERU
21,80 m²
POWIERZCHNIA UŻYTKOWA TARASU
12,50m²
KUBATURA
110m³
WYSOKOŚĆ KALENICY
5,93m
MINIMALNE WYMIARY DZIAŁKI
9×11m
KĄT NACHYLENIA DACHU
45°-50°
WYSOKOŚĆ POMIESZCZEŃ: PARTER
250cm
WYSOKOŚĆ POMIESZCZEŃ: PODDASZE
220cm
Rzuty i przekroje
Opis wykończenia
Dom drewniany wykonany z balika płaskiego grubości 45 mm łączonego na podwójne pióro i wpust z ocieploną podłogą i dachem. Podłogi pokryte deską podłogową, schody zabiegowe z barierką. Wydzielone pomieszczenia za pomocą balika gr. 45mmm. Dom wyposażony w stolarkę okienną dwuszybową rekreacyjną oraz w stolarkę drzwiową. Dach pokryty blachodachówką wraz z obróbkami blacharskimi i orynnowaniem. W tej wersji brak możliwości ocieplenia ścian.
Stan surowy otwarty 57 476 zł netto
Stan wykończony 161 071 zł netto
- Letniskowy
-
Dom drewniany wykonany z balika płaskiego grubości 45 mm łączonego na podwójne pióro i wpust z ocieploną podłogą i dachem. Podłogi pokryte deską podłogową, schody zabiegowe z barierką. Wydzielone pomieszczenia za pomocą balika gr. 45mmm. Dom wyposażony w stolarkę okienną dwuszybową rekreacyjną oraz w stolarkę drzwiową. Dach pokryty blachodachówką wraz z obróbkami blacharskimi i orynnowaniem. W tej wersji brak możliwości ocieplenia ścian.
Stan surowy otwarty 57 476 zł netto
Stan wykończony 161 071 zł netto
Preferencyjna stawka VAT 8% dotyczy budynków mieszkalnych na działce budowlanej.
Poszczególne stany wykończenia nie zawierają ceny fundamentów, instalacji elektrycznej i wod.-kan. oraz transportu.
WIZUALIZACJA W TRAKCIE PRZYGOTOWANIA
Sprawdź materiały, z których budujemy
Nasze multimedia
8 kroków do wymarzonego domu drewnianego
Nasze wartości
Nasze artykuły i porady
Opinie naszych klientów
Inne projekty
Polecani producenci





