DOM DREWNIANY Z DWUSPADOWYM DACHEM 32 M² Z PODDASZEM CAS 57 „POBIEROWO”
Dom z drewna w technologii szkieletowej dostępny w wersji rekreacyjnej całorocznej, przeznaczony dla 4 osobowej rodziny. To nowoczesna bryła dostępna w różnych wariantach wykończenia.
DOM DREWNIANY Z DWUSPADOWYM DACHEM 32 M² Z PODDASZEM CAS 57 „POBIEROWO”
Odkryj dom rekreacyjny Pobierowo 57. Ta nowoczesna konstrukcja szkieletowa łączy luksus z naturą. Strefa dzienna: salon z kuchnią, łazienka. Strefa nocna: dwie sypialnie. Idealny na rodzinne wakacje czy romantyczny weekend. Poczuj harmonię komfortu i spokoju.
Charakterystyka budynku
Podstawowe informacje
POWIERZCHNIA ZABUDOWY
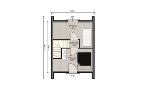
34,04 m²
POWIERZCHNIA UŻYTKOWA
32,00 m²
POWIERZCHNIA UŻYTKOWA PARTERU
20,55 m²
POWIERZCHNIA UŻYTKOWA PODDASZA
11,45 m²
KUBATURA
185m³
WYSOKOŚĆ KALENICY
6,75m
MINIMALNE WYMIARY DZIAŁKI
12,93×14,97m
KĄT NACHYLENIA DACHU
45°
WYSOKOŚĆ POMIESZCZEŃ: PARTER
250cm
WYSOKOŚĆ POMIESZCZEŃ: PODDASZE
250cm
Rzuty i przekroje
Opis wykończenia
Dom drewniany szkieletowy wykonany w konstrukcji szkieletu drewnianego w całości ocieplony wełną mineralną grubości 15 cm (λ 0,033) wykończony drewnem lub płytą Fermacell (do spoinowania). Jest to wersja domu drewnianego, który pozwala na użytkowanie całym rokiem. Wydzielone pomieszczenia za pomocą szkieletu 7 cm wypełnionego wełną mineralną 5 cm. Dom wyposażony w stolarkę okienną trzyszybową PCV oraz w stolarkę drzwiową (drzwi wejściowe antywłamaniowe, drzwi wewnętrzne drewniane). Na stropie deska podłogowa świerkowa z możliwością wygłuszenia. Dach pokryty blachodachówką wraz z obróbkami blacharskimi i orynnowaniem. Możliwość postawienia komina systemowego z obróbką nad dachem.
Stan surowy otwarty 48 665 zł netto
Stan wykończony 192 419 zł netto
- Rekreacyjny
-
Dom drewniany szkieletowy wykonany w konstrukcji szkieletu drewnianego w całości ocieplony wełną mineralną grubości 15 cm (λ 0,033) wykończony drewnem lub płytą Fermacell (do spoinowania). Jest to wersja domu drewnianego, który pozwala na użytkowanie całym rokiem. Wydzielone pomieszczenia za pomocą szkieletu 7 cm wypełnionego wełną mineralną 5 cm. Dom wyposażony w stolarkę okienną trzyszybową PCV oraz w stolarkę drzwiową (drzwi wejściowe antywłamaniowe, drzwi wewnętrzne drewniane). Na stropie deska podłogowa świerkowa z możliwością wygłuszenia. Dach pokryty blachodachówką wraz z obróbkami blacharskimi i orynnowaniem. Możliwość postawienia komina systemowego z obróbką nad dachem.
Stan surowy otwarty 48 665 zł netto
Stan wykończony 192 419 zł netto
Preferencyjna stawka VAT 8% dotyczy budynków mieszkalnych na działce budowlanej.
Poszczególne stany wykończenia nie zawierają ceny fundamentów, instalacji elektrycznej i wod.-kan. oraz transportu.
Sprawdź materiały, z których budujemy
Nasze multimedia
8 kroków do wymarzonego domu drewnianego
Nasze wartości
Nasze artykuły i porady
Opinie naszych klientów
Inne projekty
Polecani producenci





