PARTEROWY DOM SZKIELETOWY - Atrium Pleszka SZ
Dom drewniany parterowy w technologii szkieletowej dostępny w wersji mieszkalnej przeznaczony dla 2-4 osobowej rodziny.
PARTEROWY DOM SZKIELETOWY - Atrium Pleszka SZ
Atrium Pleszka SZ to nowoczesny dom piętrowy z garażem i antresolą, zaprojektowany dla 2-4 osobowej rodziny. Z 124,50 m² powierzchni użytkowej, oferuje przestronną strefę dzienną z salonem, jadalnią i aneksem kuchennym oraz komfortowe sypialnie na piętrze. Zbudowany w technologii szkieletowej, gwarantuje wydajność energetyczną i trwałość. Pleszka SZ stanowi idealne połączenie nowoczesnego designu, funkcjonalności i domowego ciepła.
Charakterystyka budynku
Podstawowe informacje
POWIERZCHNIA UŻYTKOWA
124,50 m²
GARAŻ
21,95 m3
STRYCH
34,30 m3
POWIERZCHNIA NETTO PARTERU
176,70 m²
POWIERZCHNIA NETTO PODDASZA
82,20 m²
POWIERZCHNIA CAŁKOWITA
357,40 m²
POWIERZCHNIA ZABUDOWY
206,25 m²
POWIERZCHNIE DODATKOWE
25,45 m²
KUBATURA BRUTTO
924,60 m3
WYSOKOŚĆ BUDYNKU
6,96 m
KĄT NACHYLENIA DACHU
30°
RODZAJ STROPU
lekki
POWIERZCHNIA DACHU
176,00 m²
OGRZEWANIE
gazowe
SZEROKOŚĆ BUDYNKU
11,45 m
DŁUGOŚĆ BUDYNKU
19,80 m
MINIMALNE WYMIARY DZIAŁKI
23,45 x 31,80 m
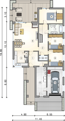
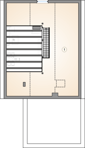
Rzuty i przekroje
Opis wykończenia
Dom drewniany szkieletowy wykonany w konstrukcji szkieletu drewnianego w całości ocieplony wełną mineralną (ściany 20 cm, dach 30 cm – λ 0,033) wykończony drewnem lub płytą Fermacell (do spoinowania). Wydzielone pomieszczenia za pomocą szkieletu 7 cm wypełnionego wełną mineralną 5 cm. Dom wyposażony w stolarkę okienną trzyszybową PCV oraz w stolarkę drzwiową (drzwi wejściowe antywłamaniowe, drzwi wewnętrzne drewniane). Na stropie deska podłogowa świerkowa z możliwością wykonania stropu mieszkalnego (20 cm). Dach pokryty blachodachówką wraz z obróbkami blacharskimi i orynnowaniem. Możliwość postawienia komina systemowego z obróbką nad dachem. Ta wersja domu szkieletowego spełnia warunki domu mieszkalnego i norm przenikalności ciepła.
Stan surowy otwarty: 235 775 zł netto
Stan wykończony: 740 043 zł netto
m2 pow. użytkowej stanu wykończonego 5 864 zł netto
- Mieszkalny
-
Dom drewniany szkieletowy wykonany w konstrukcji szkieletu drewnianego w całości ocieplony wełną mineralną (ściany 20 cm, dach 30 cm – λ 0,033) wykończony drewnem lub płytą Fermacell (do spoinowania). Wydzielone pomieszczenia za pomocą szkieletu 7 cm wypełnionego wełną mineralną 5 cm. Dom wyposażony w stolarkę okienną trzyszybową PCV oraz w stolarkę drzwiową (drzwi wejściowe antywłamaniowe, drzwi wewnętrzne drewniane). Na stropie deska podłogowa świerkowa z możliwością wykonania stropu mieszkalnego (20 cm). Dach pokryty blachodachówką wraz z obróbkami blacharskimi i orynnowaniem. Możliwość postawienia komina systemowego z obróbką nad dachem. Ta wersja domu szkieletowego spełnia warunki domu mieszkalnego i norm przenikalności ciepła.
Stan surowy otwarty: 235 775 zł netto
Stan wykończony: 740 043 zł netto
m2 pow. użytkowej stanu wykończonego 5 864 zł netto
Preferencyjna stawka VAT 8% dotyczy budynków mieszkalnych na działce budowlanej.
Poszczególne stany wykończenia nie zawierają ceny fundamentów, instalacji elektrycznej i wod.-kan. oraz transportu.
Sprawdź materiały, z których budujemy
Nasze multimedia
8 kroków do wymarzonego domu drewnianego
Nasze wartości
Nasze artykuły i porady
Opinie naszych klientów
Inne projekty
Polecani producenci





