PARTEROWY DOM SZKIELETOWY - Pelikan Slim II SZ
Dom drewniany parterowy w technologii szkieletowej dostępny w wersji mieszkalnej przeznaczony dla 2-4 osobowej rodziny.
PARTEROWY DOM SZKIELETOWY - Pelikan Slim II SZ
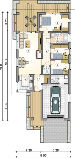
Atrium Pelikan Slim II SZ to nowoczesny dom parterowy o powierzchni 93,10 m², idealny dla rodzin 2-4 osobowych. Zaprojektowany w technologii szkieletowej, oferuje salon z aneksem kuchennym, trzy sypialnie, dwie łazienki oraz dodatkowe pomieszczenia gospodarcze. Charakteryzuje się nowoczesną bryłą i jest dostępny w różnych wariantach wykończenia. Pelikan Slim II SZ zapewnia komfort, funkcjonalność i estetykę na najwyższym poziomie.
Charakterystyka budynku
Podstawowe informacje
POWIERZCHNIA UŻYTKOWA
93,10 m²
GARAŻ
27,15 m²
POWIERZCHNIA NETTO PARTERU
140,30 m²
POWIERZCHNIA CAŁKOWITA
167,65 m²
POWIERZCHNIA ZABUDOWY
167,65 m²
POWIERZCHNIE DODATKOWE
28,55 m²
KUBATURA BRUTTO
789,05 m3
WYSOKOŚĆ BUDYNKU
6,47 m
KĄT NACHYLENIA DACHU
30°
RODZAJ STROPU
lekki
POWIERZCHNIA DACHU
244,00 m²
OGRZEWANIE
gazowe
SZEROKOŚĆ BUDYNKU
9,50 m
DŁUGOŚĆ BUDYNKU
19,00 m
MINIMALNE WYMIARY DZIAŁKI
21,50 x 31,00 m
Rzuty i przekroje
Opis wykończenia
Dom drewniany szkieletowy wykonany w konstrukcji szkieletu drewnianego w całości ocieplony wełną mineralną (ściany 20 cm, dach 30 cm – λ 0,033) wykończony drewnem lub płytą Fermacell (do spoinowania). Wydzielone pomieszczenia za pomocą szkieletu 7 cm wypełnionego wełną mineralną 5 cm. Dom wyposażony w stolarkę okienną trzyszybową PCV oraz w stolarkę drzwiową (drzwi wejściowe antywłamaniowe, drzwi wewnętrzne drewniane). Na stropie deska podłogowa świerkowa z możliwością wykonania stropu mieszkalnego (20 cm). Dach pokryty blachodachówką wraz z obróbkami blacharskimi i orynnowaniem. Możliwość postawienia komina systemowego z obróbką nad dachem. Ta wersja domu szkieletowego spełnia warunki domu mieszkalnego i norm przenikalności ciepła.
Stan surowy otwarty: 163 771 zł
Stan wykończony: 571 117 zł
Cena za 1 metr wykończony pow. użytkowej: 6 134 zł
- Mieszkalny
-
Dom drewniany szkieletowy wykonany w konstrukcji szkieletu drewnianego w całości ocieplony wełną mineralną (ściany 20 cm, dach 30 cm – λ 0,033) wykończony drewnem lub płytą Fermacell (do spoinowania). Wydzielone pomieszczenia za pomocą szkieletu 7 cm wypełnionego wełną mineralną 5 cm. Dom wyposażony w stolarkę okienną trzyszybową PCV oraz w stolarkę drzwiową (drzwi wejściowe antywłamaniowe, drzwi wewnętrzne drewniane). Na stropie deska podłogowa świerkowa z możliwością wykonania stropu mieszkalnego (20 cm). Dach pokryty blachodachówką wraz z obróbkami blacharskimi i orynnowaniem. Możliwość postawienia komina systemowego z obróbką nad dachem. Ta wersja domu szkieletowego spełnia warunki domu mieszkalnego i norm przenikalności ciepła.
Stan surowy otwarty: 163 771 zł
Stan wykończony: 571 117 zł
Cena za 1 metr wykończony pow. użytkowej: 6 134 zł
Preferencyjna stawka VAT 8% dotyczy budynków mieszkalnych na działce budowlanej.
Poszczególne stany wykończenia nie zawierają ceny fundamentów, instalacji elektrycznej i wod.-kan. oraz transportu.
Sprawdź materiały, z których budujemy
Nasze multimedia
8 kroków do wymarzonego domu drewnianego
Nasze wartości
Nasze artykuły i porady
Opinie naszych klientów
Inne projekty
Polecani producenci





