DOM BEZ POZWOLENIA DREWNIANY Z PODDASZEM CAS 102 „PISZ”
Dom szkieletowy dostępny w wersji rekreacyjnej całorocznej oraz mieszkalnej, przeznaczony dla 4 osobowej rodziny.
DOM BEZ POZWOLENIA DREWNIANY Z PODDASZEM CAS 102 „PISZ”
Dom drewniany Pisz 102 to propozycja dla osób szukających funkcjonalnego i nowoczesnego rozwiązania. Wykonany w technologii szkieletowej, oferuje możliwość wykorzystania jako dom rekreacyjny lub całoroczny. Poddasze zapewnia dodatkową przestrzeń użytkową, a prosta bryła sprawia, że budynek łatwo wkomponuje się w krajobraz.
Charakterystyka budynku
Podstawowe informacje
POWIERZCHNIA ZABUDOWY
66,00 m²
POWIERZCHNIA UŻYTKOWA
70,19 m²
POWIERZCHNIA UŻYTKOWA PARTERU
43,02 m²
POWIERZCHNIA UŻYTKOWA PODDASZA
27,13 m²
KUBATURA
340m³
WYSOKOŚĆ KALENICY
7,58m
MINIMALNE WYMIARY DZIAŁKI
15,53×17,08m
KĄT NACHYLENIA DACHU
45°
WYSOKOŚĆ POMIESZCZEŃ: PARTER
270cm
WYSOKOŚĆ POMIESZCZEŃ: PODDASZE
250cm
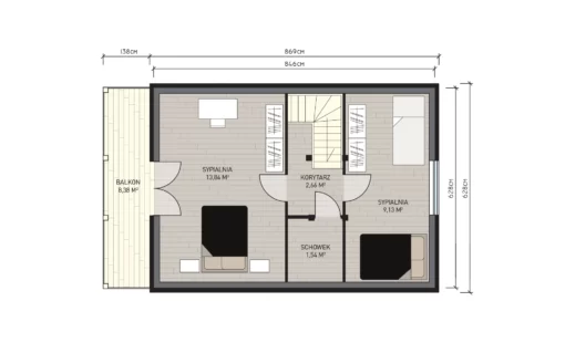
Rzuty i przekroje
Opis wykończenia
Dom drewniany wykonany z balika płaskiego grubości 45 mm łączonego na podwójne pióro i wpust z ocieploną podłogą i dachem. Podłogi pokryte deską podłogową, schody zabiegowe z barierką. Wydzielone pomieszczenia za pomocą balika gr. 45mmm. Dom wyposażony w stolarkę okienną dwuszybową rekreacyjną oraz w stolarkę drzwiową. Dach pokryty blachodachówką wraz z obróbkami blacharskimi i orynnowaniem. W tej wersji brak możliwości ocieplenia ścian.
Stan surowy otwarty 109 211 zł netto
Stan wykończony 371 927 zł netto
Dom drewniany szkieletowy wykonany w konstrukcji szkieletu drewnianego w całości ocieplony wełną mineralną (ściany 20 cm, dach 30 cm – λ 0,033) wykończony drewnem lub płytą Fermacell (do spoinowania). Wydzielone pomieszczenia za pomocą szkieletu 7 cm wypełnionego wełną mineralną 5 cm. Dom wyposażony w stolarkę okienną trzyszybową PCV oraz w stolarkę drzwiową (drzwi wejściowe antywłamaniowe, drzwi wewnętrzne drewniane). Na stropie deska podłogowa świerkowa z możliwością wykonania stropu mieszkalnego (20 cm). Dach pokryty blachodachówką wraz z obróbkami blacharskimi i orynnowaniem. Możliwość postawienia komina systemowego z obróbką nad dachem. Ta wersja domu szkieletowego spełnia warunki domu mieszkalnego i norm przenikalności ciepła.
Stan surowy otwarty 109 211 zł netto
Stan wykończony 406 188 zł netto
m2 pow. użytkowej stanu wykończonego 5 787 zł netto
- Rekreacyjny
-
Dom drewniany wykonany z balika płaskiego grubości 45 mm łączonego na podwójne pióro i wpust z ocieploną podłogą i dachem. Podłogi pokryte deską podłogową, schody zabiegowe z barierką. Wydzielone pomieszczenia za pomocą balika gr. 45mmm. Dom wyposażony w stolarkę okienną dwuszybową rekreacyjną oraz w stolarkę drzwiową. Dach pokryty blachodachówką wraz z obróbkami blacharskimi i orynnowaniem. W tej wersji brak możliwości ocieplenia ścian.
Stan surowy otwarty 109 211 zł netto
Stan wykończony 371 927 zł netto
- Mieszkalny
-
Dom drewniany szkieletowy wykonany w konstrukcji szkieletu drewnianego w całości ocieplony wełną mineralną (ściany 20 cm, dach 30 cm – λ 0,033) wykończony drewnem lub płytą Fermacell (do spoinowania). Wydzielone pomieszczenia za pomocą szkieletu 7 cm wypełnionego wełną mineralną 5 cm. Dom wyposażony w stolarkę okienną trzyszybową PCV oraz w stolarkę drzwiową (drzwi wejściowe antywłamaniowe, drzwi wewnętrzne drewniane). Na stropie deska podłogowa świerkowa z możliwością wykonania stropu mieszkalnego (20 cm). Dach pokryty blachodachówką wraz z obróbkami blacharskimi i orynnowaniem. Możliwość postawienia komina systemowego z obróbką nad dachem. Ta wersja domu szkieletowego spełnia warunki domu mieszkalnego i norm przenikalności ciepła.
Stan surowy otwarty 109 211 zł netto
Stan wykończony 406 188 zł netto
m2 pow. użytkowej stanu wykończonego 5 787 zł netto
Preferencyjna stawka VAT 8% dotyczy budynków mieszkalnych na działce budowlanej.
Poszczególne stany wykończenia nie zawierają ceny fundamentów, instalacji elektrycznej i wod.-kan. oraz transportu.
Sprawdź materiały, z których budujemy
Nasze multimedia
8 kroków do wymarzonego domu drewnianego
Nasze wartości
Nasze artykuły i porady
Opinie naszych klientów
Inne projekty
Polecani producenci





